
Altzairuzko Egiturako Erretenak eraikinaren teilatuaren drainatze-sistemaren osagai funtsezkoak dira. Haien eginkizun nagusia teilatutik euri-ura biltzea da, hodi bertikaletara bideratzea eta, ondoren, kanpoko drainatze-sistemara isurtzea, hormak zuzenean higatzea edo zimenduak bustitzea eragotziz. Liweiyuan-en produktuen diseinua eta instalazioa indar handia eta pisu arina dute, drainatze leuna eta aparteko iraunkortasuna bermatuz.
Altzairuzko Egiturako Erretenak eraikinaren teilatuaren drainatze-sistemaren osagai funtsezkoak dira. Haien eginkizun nagusia teilatutik euri-ura biltzea da, hodi bertikaletara bideratzea eta, ondoren, kanpoko drainatze-sistemara isurtzea, hormak zuzenean higatzea edo zimenduak bustitzea eragotziz. Liweiyuan-en produktuen diseinua eta instalazioa indar handia eta pisu arina dute, drainatze leuna eta aparteko iraunkortasuna bermatuz.
Liweiyuan-en altzairuzko egiturako erretena korrosioarekiko eta kolpeekiko erresistenteak diren materialez egina dago.
Gure produktua beroan galbanizatuta dago, korrosioarekiko erresistentzia bikaina, kostu baxua eta bizitza luzea eskaintzen ditu. 1,5-2,5 mm-ko lodieretan eskuragarri dago, aplikazio gehienetarako egokia da.
Altzairu herdoilgaitzez egina, produktu honek korrosioarekiko erresistentzia eskaintzen du eta bereziki egokia da kostaldeko edo ingurune hezeetarako. 1,0-2,0 mm-ko lodieretan eskuragarri dago, prezio altuagoa baina bizitza luzea eskaintzen du.
Gure kolorez estalitako altzairuzko produktuak altzairu galbanizatuan oinarritzen dira, eguraldiari erresistentea den estaldura batez estalita, hala nola, poliesterra edo fluorokarbonoa, bai korrosioarekiko erresistentziarako bai apaingarrirako efektuetarako. 1,2-2,0 mm-ko lodieretan eskuragarri daude, eta erakargarritasun estetiko handia behar duten eraikinetarako egokiak dira.
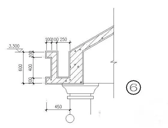
Altzairuzko Egiturako Erretenaren egitura-forma teilatuaren malda eta teilatu-hegalaren diseinura egokitu behar da. Ohiko motak U-formakoak eta V-formakoak dira. Instalazio prozesua honako hau da:
Gure altzairuzko egiturako erretenek angelu-altzairuzko erretenak erabiltzen dituzte altzairuzko egituraren teilatu-habeetan edo purlinetan finkatzeko. Parentesi-tartea 600-1000 mm-koa da, tentsioaren banaketa berdina bermatzeko.
Amaitutako erretenak aldez aurretik dimentsionatzen dira eta bertan konektatzen dira konektoreak edo soldadura erabiliz. Zigilatzailea behar da erretenaren eta teilatuaren estalkien arteko elkargunean.
Teilatuaren estalkiaren gainean keinu bat instala dezakegu. Erretenaren beheko muturra teilatuaren estalkiaren azpian jarri behar da eta zigilatzailearekin zigilatu. Hustuketa-zuloak jarri behar dira erretenaren behealdean, batez ere euri-uren igoeretara konektatzeko.
Gure Altzairuzko Egitura Gutters fabrikatzeko prozesuak marrazki-dimentsioen arabera moztea, tolestea, margotzea, amaitutako produktuaren ikuskapena, ontziratzea eta bidalketa barne hartzen ditu. Liweiyuan-en altzairu-egiturako erretenak korrosioarekiko erresistentzia, drainatze leuna eta iraunkortasuna bermatzeko diseinatu eta instalatu dira, drainatze eraginkorra bermatuz.