
Metalezko segurtasun hesiak Liweiyuanek fabrikatzen ditu, Txinako altzairuzko egitura fabrikatzaile profesionalak. Fabrikaren zuzeneko salmentak kalitate bermatua bermatzen du. Asko erabiltzen dira hormetarako, hesietarako eta itxituretarako segurtasun gailu gisa. Ongi etorria dugu zure kontsulta!
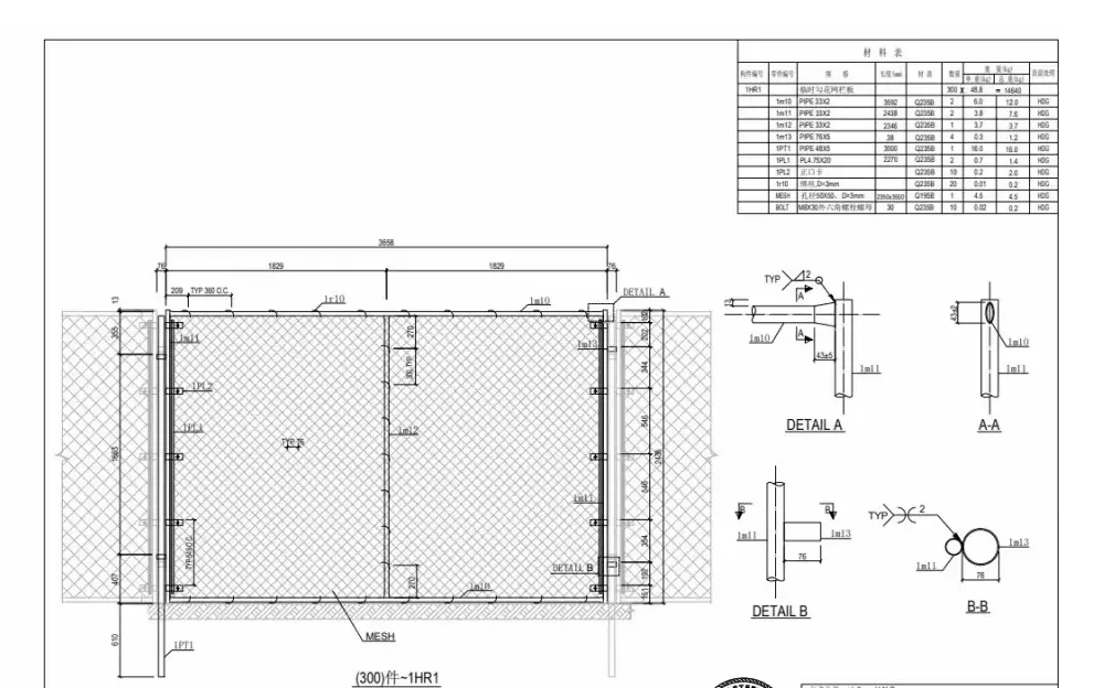
Liweiyuan-en metalezko segurtasun-hesien egitura-osagai nagusiak markoa, luzetarako habeak, konektoreak eta euskarri-zutoinak dira. Markoa, batez ere, metalezko material ezberdinez eraikita dago eta hainbat forma ditu diseinu-beharrei erantzuteko. Markoaren materialen artean, batez ere, altzairu galbanizatutako xafla, galbanizatutako hodi biribila, galbanizatutako hodi karratua eta kate-hesia. Material hauek iraunkortasun eta korrosioarekiko erresistentziagatik aukeratzen dira. Luzetarako habeak hesiaren markoen artean finkatzen dira, haien indarra eta gogortasuna areagotuz, egonkorrago eta fidagarriagoak bihurtuz.
Konektoreak hesia euskarri-zutoiekin lotzen duten funtsezko osagaiak dira. Galbanizatutako altzairuzko xafla, galbanizatutako altzairu biribila eta galbanizatutako hodiak erabiltzen ditugu. Material hauek haizearen eta lurrikararen erresistentzia bikaina eskaintzen dute, erabileran askatzea saihestuz eta hesiaren segurtasuna eta egonkortasuna bermatuz. Euskarri-zutoinak hesiaren euskarri nagusiak dira. Hainbat laguntza-mezu erabil ditzakegu kokapenaren, beharren eta ingurunearen arabera. Hala ere, zutoin hauetarako erabiltzen diren materialek egonkortasun, haize eta lurrikarekiko erresistentzia eta iraunkortasun handia izan behar dute erabileran segurtasuna bermatzeko.


Gure metalezko segurtasun-hesiak kendu eta berrerabil daitezke. Haien altuera, zabalera eta konexio-metodoak bezeroen beharretara eta aplikazio-egoeretara egokitzeko diseinatu eta fabrikatu daitezke, segurtasuna eta ingurumena errespetatuz.


Gure metalezko segurtasun-hesiek eraikuntza guneak beste eraikin eta errepideetatik modu eraginkorrean bereizten dituzte, lan-espazio isolatua sortuz. Beharren arabera desmuntatu eta muntatu daitezke.
Tailerreko isolamendu-sareak industria-tailerretan erabili ohi dira segurtasun-ekipamendu gisa, batez ere lan-eremuak mugatzeko, ekipamendu arriskutsuak isolatzeko eta langileak babesteko.
Gure produktuak biltegi barruko hesi gisa ere erabil daitezke barruko lan-eremuak babesteko. Asko erabiltzen dira biltegiratze-instalazio ezberdinetan, hala nola biltegietan, zentro logistikoetan eta lantegietan.
Liweiyuan metalezko segurtasun-hesien tamaina arruntak hauek dira: 2 metro luze eta 1,5 metro altu; 2,5 metro luze eta 2 metro altu; eta 3 metro luze eta 2,5 metro altu. Tamaina pertsonalizatuak daude eskuragarri. Altzairuzko materialen artean Q235B, Q355B, A36 eta A572 daude, Europako eta Amerikako estandarrak betez.
